
| 【貸倉庫】 ◆海部郡大治町大字砂子字尾崎◆ |
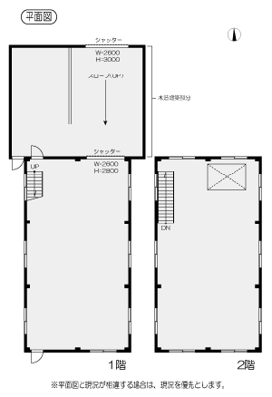
| ■海部郡大治町大字砂子字尾崎 ◇googleMAPで場所を確認 ■交通:市営バス「万場小橋」停 徒歩7分 ■保証金:220,000円(2ヶ月) ■使用部分:1階・69.88u、2階・63.26u、合計:133.14u(40.27坪) ■間取内訳:倉庫 ■築年月:昭和53年新築 ■構造:重量鉄骨造2階建 ■設備:残置クレーンあり ■駐車場:増築部分駐車可(使用料:家賃に含む) ■現況:空室 ■引渡:相談 ■取引態様:仲介
※原則保証会社加入必須(保証料:賃料の1カ月分) ※現況有姿渡し(シャッター歪み) ※用途地域:第一種住居地域 ※敷地面積:公簿合計186u(56.26坪) ※上記記載建物は、評価証明書記載によります。 ※上記の他、北側増築部分(木造)があります。 ※既設クレーンの維持管理・修理は借主の負担です。 ※図面と現況が相違する場合は、現況を優先します。 |